Architectural Plans
Architectural Services
Contact Us
Address:
179 Edwin Road
Rainham,
Kent
ME8 0AH
179 Edwin Road
Rainham,
Kent
ME8 0AH
Phone: 07957 350204
Email: info@architechnology.design
Company No: 12263820
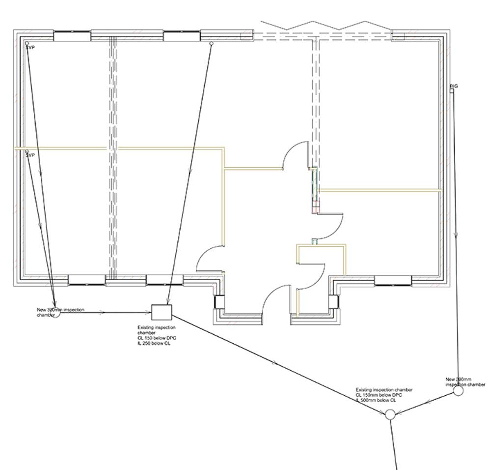
Building Regulations for a 2 storey side extension












Phone: 07957 350204
Email: info@architechnology.design
Company No: 12263820